Wohnen Sie modern und komfortabel!
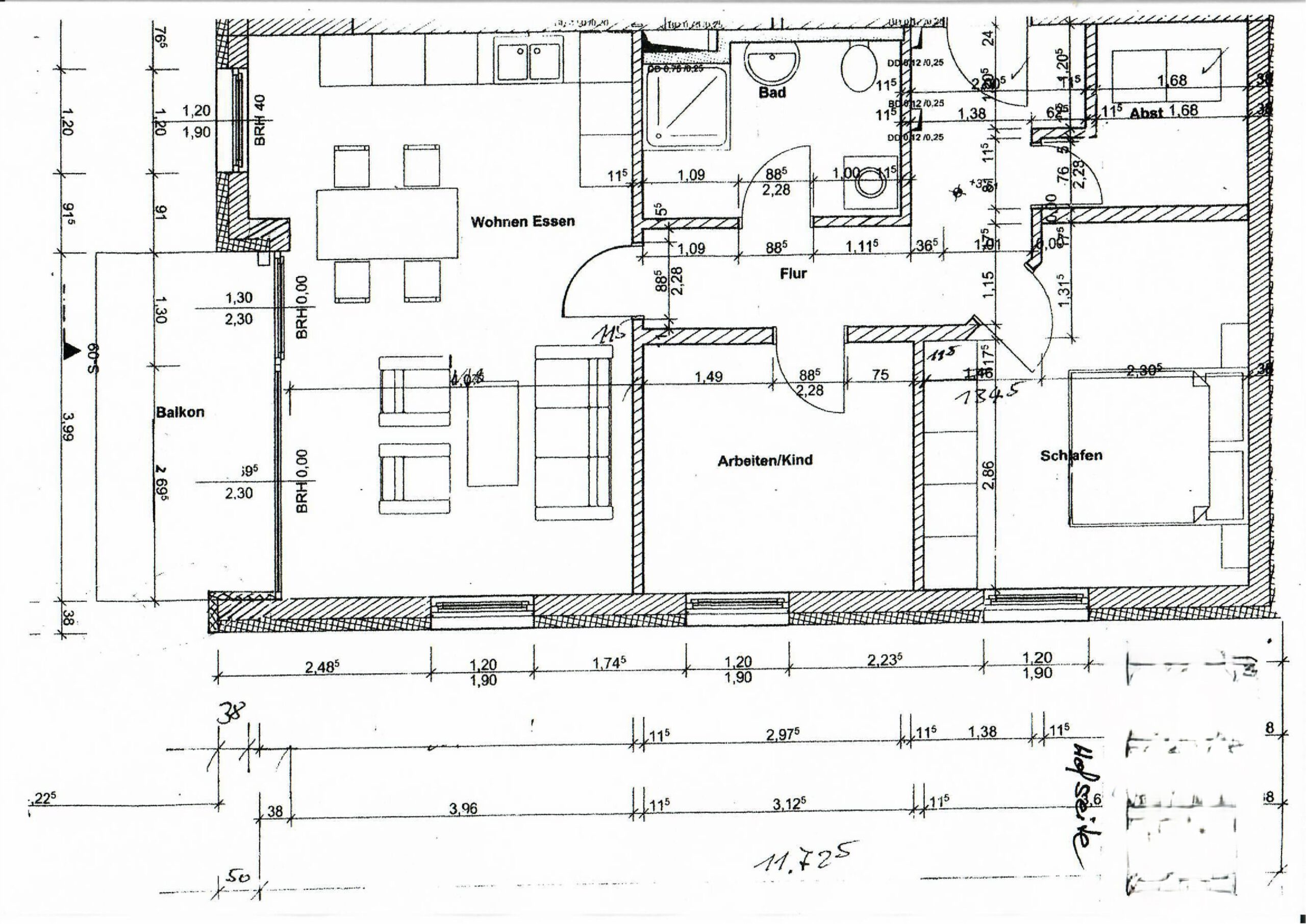
Hier erwartet Sie eine lichtdurchflutete, moderne 3-Zimmer-Wohnung im 1.OG eines in 2022 erbauten 6-Familienhauses (5 Wohneinheiten + 1 Gewerbeeinheit) in zentraler Lage im Stadtteil Käfertal. Sie betreten die Wohnung über einen Flur, der zu einem geräumigen Schlafzimmer, einem Arbeits- oder Kinderzimmer sowie zu dem großzügigen, innenliegenden Bad mit Walk-In-Dusche führt. Im Bad können auch Waschmaschine und Trockner untergebracht werden. Highlight der Wohnung ist der nach Süden ausgerichtete, offene Wohn-Essbereich, der Zugang zum überdachten Balkon bietet und im Essbereich mit einer modernen Einbauküche inklusive Elektrogeräten (ohne Kühlschrank) ausgestattet ist – die Einbauküche ist bereits im Mietpreis enthalten. Alle Fenster sind mit elektrischen Rolläden versehen. Ein geschmackvoller Vinylboden in den Wohn- und Schlafräumen sowie großformatige Fliesen im Bad runden das Wohlfühl-Ambiente ab. In der Wohnung ist des Weiteren ein praktischer Abstellraum vorhanden. Zur Wohnung gehört ein eigenes Kellerabteil sowie zwei Doppelparker-Stellplätze, die für insgesamt zzgl. 140,- Euro/Monat mitgemietet werden (die Stellplatzmiete ist bereits in der ausgewiesenen Gesamtmiete enthalten). Das Objekt wird von einem Hausmeister-Service gepflegt, so dass hierbei keinerlei Verpflichtungen für Sie anfallen. Die Wohnung überzeugt durch ihre durchdachte Raumaufteilung und eignet sich perfekt für alle, die Wert auf eine komfortable und Energieeffiziente Wohnausstattung legen.
Bitte beachten Sie, dass die Wohnung nach Vorgaben der Vermieter an max. 3 Personen vermietet werden kann.
Ein virtueller Rundgang kann Ihnen per Link zur Verfügung gestellt werden – wir freuen uns auf Ihre persönliche Kontaktaufnahme per Email-Anfrage.
Objektdetails
Ort: Mannheim-Käfertal
Zimmer: 3
Nebenkosten: 175,00 Euro
Haustiere: nach Vereinbarung
Baujahr: 2022/2023
Wohnfläche: 68,99 m²
Garage/Stellplatz: 2 Stellplätze in Duplex-Anlage zu gesamt 140,00 Euro/Monat
Frei ab: Sofort
Typ: Etagenwohnung 1. OG mit Balkon
Nettomiete: 1.155,00 Euro (inklusive Einbauküche)
Kaution: 2.310,00 Euro
Ausstattung
Lage
Zentrale Lage in Mannheim-Käfertal. Sie profitieren von einer ausgezeichneten Anbindung an öffentliche Verkehrsmittel,
Einkaufsmöglichkeiten in unmittelbarer Nähe sowie einer Vielzahl von Freizeit- und Sportangeboten. Parks und Grünflächen laden zu entspannenden Spaziergängen ein. Käfertal liegt im Nordosten Mannheims. Angrenzende Stadtbezirke sind
Vogelstang, Feudenheim, Wohlgelegen und Waldhof. Im Nordosten liegt die Stadt Viernheim.















