Urlaubsfeeling zuhause – Familienoase mit Pool!

Die großzügige Doppelhaushälfte aus dem Baujahr 1982 befindet sich auf einem Grundstück mit ca. 367 m² in einer verkehrsberuhigten Straße in Ortsrandlage von Ketsch. Mit ca. 236,29 m² Wohnfläche verteilt auf 6 Zimmer gehören Platzprobleme der Vergangenheit an. Highlight des Hauses ist der im Jahr 2024 massiv erbaute Pool, der mit 8,00 m x 4,00 Metern eine komfortable Größe bietet. Eine ebenfalls neu erbaute Terrassenanlage mit Außendusche sowie eine hochwertige Aluminiumumzäunung runden das Bild ab und sorgen für Urlaubsfeeling im eigenen Zuhause.
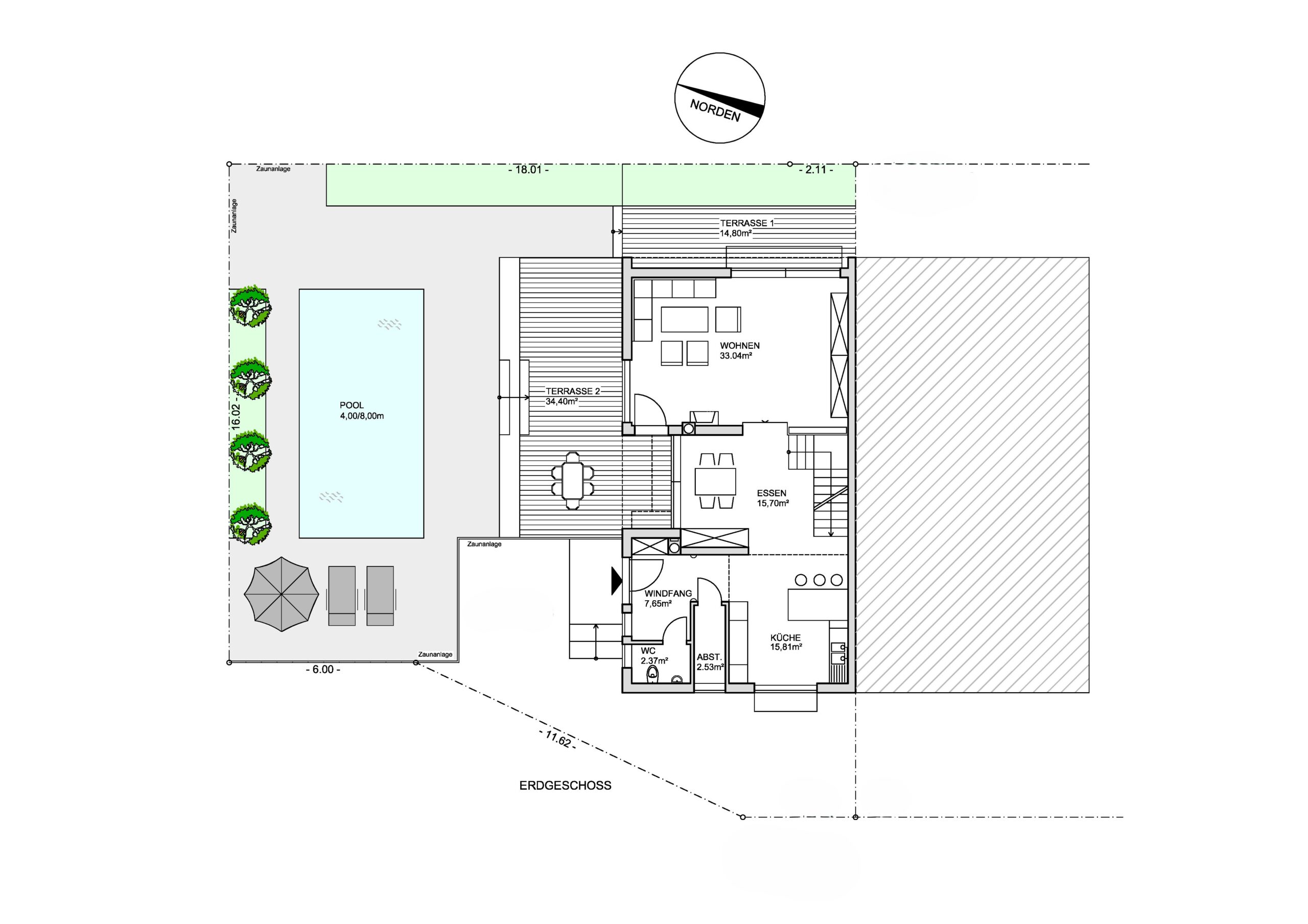
Die Aufteilung des Hauses eignet sich perfekt für eine größere Familie.  Im Erdgeschoss führt eine Diele zu einer offenen Küche mit Theke und dem hellen Essbereich, der Zugang zur Terrasse und zum Poolbereich bietet. In der Diele ist auch ein praktisches Gäste-WC untergebracht. Über eine Stufe abgesetzt führt der Essbereich zu einem großzügigen Wohnzimmer, das mit einem offenen Kamin ausgestattet ist und ebenfalls Zugang zur Hauptterrasse sowie einer kleinen, hinteren Terrasse bietet. Letztere eignet sich auch z.B. für die Errichtung eines Wintergartens. Alle Fenster und Terrassentüren sind mit elektrischen Rollläden ausgestattet – die Wohn- u. Schlafräume überwiegend mit Klimaanlage (Heizung & Kühlung), das Erdgeschoss verfügt über Fußbodenheizung.
Eine Treppe führt in das Obergeschoss – hier verteilen sich die Räumlichkeiten über eine große Diele/Galerie mit Loggia (Richtung Terrasse & Pool) auf ein geräumiges Elternschlafzimmer, zwei Kinderzimmer (eines davon aktuell als Ankleidezimmer genutzt) und ein Tageslicht-Bad mit Waschtisch, Eckbadewanne und Walk-In-Dusche. Die Diele/Galerie eignet sich auch hervorragend zur Nutzung als Arbeitsbereich. Alle Räume sind lichtdurchflutet und bieten Zutritt zur Loggia oder zum Balkon. Das nachträglich ausgebaute Dachgeschoss verfügt über ein großzügiges Studio, in dem Wohnen und Schlafen kombiniert werden können, sowie ein eigenes Tageslicht-Duschbad. Eine Loggia mit Blick auf Terrasse und Pool ist auch auf dieser Etage vorhanden – des Weiteren ein praktischer Abstellbereich.
Im Kellergeschoss finden Sie einen großen Hobbyraum mit Bar und Theke, ein WC sowie einen Hauswirtschaftsraum vor. Zwei PKW-Außenstellplätze direkt vor dem Haus runden dieses Angebot ab.
Das Objekt punktet mit einem großzügigen Platzangebot, einem durchdachten Grundriss und einer hochwertigen Innenausstattung.
Bei diesem Objekt fällt für den Käufer keine Provision an! Haben wir Ihr Interesse geweckt? Dann freuen wir uns auf Ihre persönliche Anfrage!

Objektdetails

Ort: Ketsch

Zimmer: 6

Kaufpreis: 748.000,00 Euro

Frei ab: nach Vereinbarung

Baujahr: 1982

Grundstück: ca. 367 m²

Käuferprovision: Provisionsfrei

Garage/Stellplatz: 1 PKW-Außenstellplatz

Typ: Doppelhaushälfte mit Terrasse & Pool

Wohnfläche: ca. 236,29 m²

Hausgeld: 376,00 Euro/Monat

Ausstattung

  • Doppelhaushälfte
  • Baujahr 1982
  • Grundstück ca. 367 m²
  • 6 Zimmer
  • Wohnfläche ca. 236,29 m²
  • Terrassenanlage & Pool mit Außendusche (beheizt per Wärmepumpe)
  • neuwertige Aluminium-Umzäunung
  • 2 Loggien & 1 Balkon
  • Einbauküche
  • Spanndecken
  • indirekte Beleuchtung
  • Gäste-WC
  • elektr. Rollläden
  • Türsprechanlage mit Kamera EG + OG
  • Fußbodenheizung EG
  • Granitboden, Fliesen, Laminat
  • offener Kamin Wohnzimmer
  • Öl-Niedertemperaturheizung (BJ 1987, Brenner & WW-Speicher 2018)
  • Endenergieverbrauch: 192,4 kW/h
  • Klimageräte Wohn- u. Schlafräume
  • Tageslicht-Bad mit Eckbadewanne & Walk-In-Dusche
  • Tageslicht-Duschbad DG
  • großzügige Diele/Galerie im OG
  • komplett unterkellert
  • SAT-Anlage
  • 2 PKW-Außenstellplätze

Lage

Ruhig gelegen in einer verkehrsberuhigten Straße am Ortsrand von Ketsch. Verschiedene Einkaufsmöglichkeiten sowie die umliegenden Felder sind in wenigen Gehminuten erreichbar. Ketsch ist eine moderne Gemeinde mit 12.500 Einwohnern und liegt inmitten des Städtedreiecks Mannheim, Heidelberg, Speyer. Ausreichend Kindergärten und Schulen, eine gute Infrastruktur, ideale Einkaufsmöglichkeiten, das Sport- und Freizeitzentrum, die Rheinhalle, das Hallen- und Freibad mit Wellenbad, der Angler- und der Badesee sowie das Festgelände bieten in Verbindung mit ca. 70 Vereinen die besten Voraussetzungen, um sich in dieser Kurpfälzer Gemeinde wohlzufühlen. Die Anbindung an die B36 und A6 Richtung Karlsruhe und Mannheim sowie an die B39 und A61 Richtung Speyer ist in wenigen Autominuten gegeben.